LOCAL COMMERCIAL A LOUER - MAUGUIO
Local commercial
MAUGUIO
Situé à proximité du centre historique de Mauguio, et au coeur d’une nouvelle ZAC,
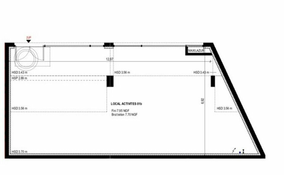
Local commercial d’une surface d’environ 99.50m² .
Exposé face à la future place du quartier avec de nombreux commerces et activités (boucherie, restaurants, centre urgence irm scanner, gymnase, pôle santé, alimentaire etc.)
La ZAC s’étend sur 19 hectares et accueille plus de 800 logements.
De nombreuses places de parkings sont prévues face au local (arrêt minute, courte durée) .
Loyer mensuel : 1 824 Euros HT HC
Honoraires à la charge du preneur soit 20% du loyer annuel HT HC.
Nous contacter pour plus de renseignements.
Référence | 34.0416 |
---|---|
Mandat | 6236 |
Surface | 99 m² |
Loyer HT HC / an | 21 890 € |
Loyer HT HC / m² / an | 220 € |
Batiment – Lot | Etage | Type | Surface | Loyer annuel | Charges annuelles | Disponibilité |
Lot 5B | RDC | LOCAL COMMERCIAL | 99.50 m² | 21 890 € HT HC | EN COURS DE DETERMINATION | DISPONIBLE |